Cadd Plans
 

    Since my computer career started in the Cadd department is was only natural that I draw up the plans that way. (I used AutoCAD 2006.)

    I started with a scanned set of floorplans in TIFF format imported into a new AutoCAD drawing. I set the drawing units to architectural and rubber-sheeted the TIFF to match the printed dimensions. After that I just sketched out what I wanted.

Home Theater/Garage

Front and right walls Rear wall Left wall
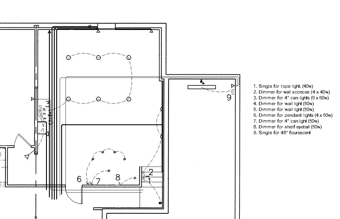
Plan view Wiring plan Section at screen

      I put the projector on a ladder and moved it in and out (and up and down on books) to determine where to place the mount. Based on the screen size (92") the closest seating should be 10' away. That set the placement of the surround speakers. The pendant lights were centered over the bar. I guessed at a pub table size and the sconces were placed to clear the right surround speaker. I sized the speaker closets to hold a relatively large tower - much bigger than I planned to get.

    I based the section at the screen on a room I saw at Gramophone. As shown on the drawing, I initially planned on sloping the countertop to keep the kids from sitting on it. My wife and I thought about it and decided to make the top level. We figured the kids would see the slope as a challenge.

    I was originally going to put four can lights in the theater, bit the contractor suggested six. I usually agreed with him. One exception is the light switch location on the left wall. He wanted it in the corner (typical location.) I knew the pub table was going there and that the switches would be closer to the sofa. Also, I was getting remote-controlled dimmer switches so location wasn't important.

    The garage was just going to have a workbench and overhead lights. Pretty simple, but the trick was to wire it all at once.

Family Room

 

Front view Top Rear walls
 
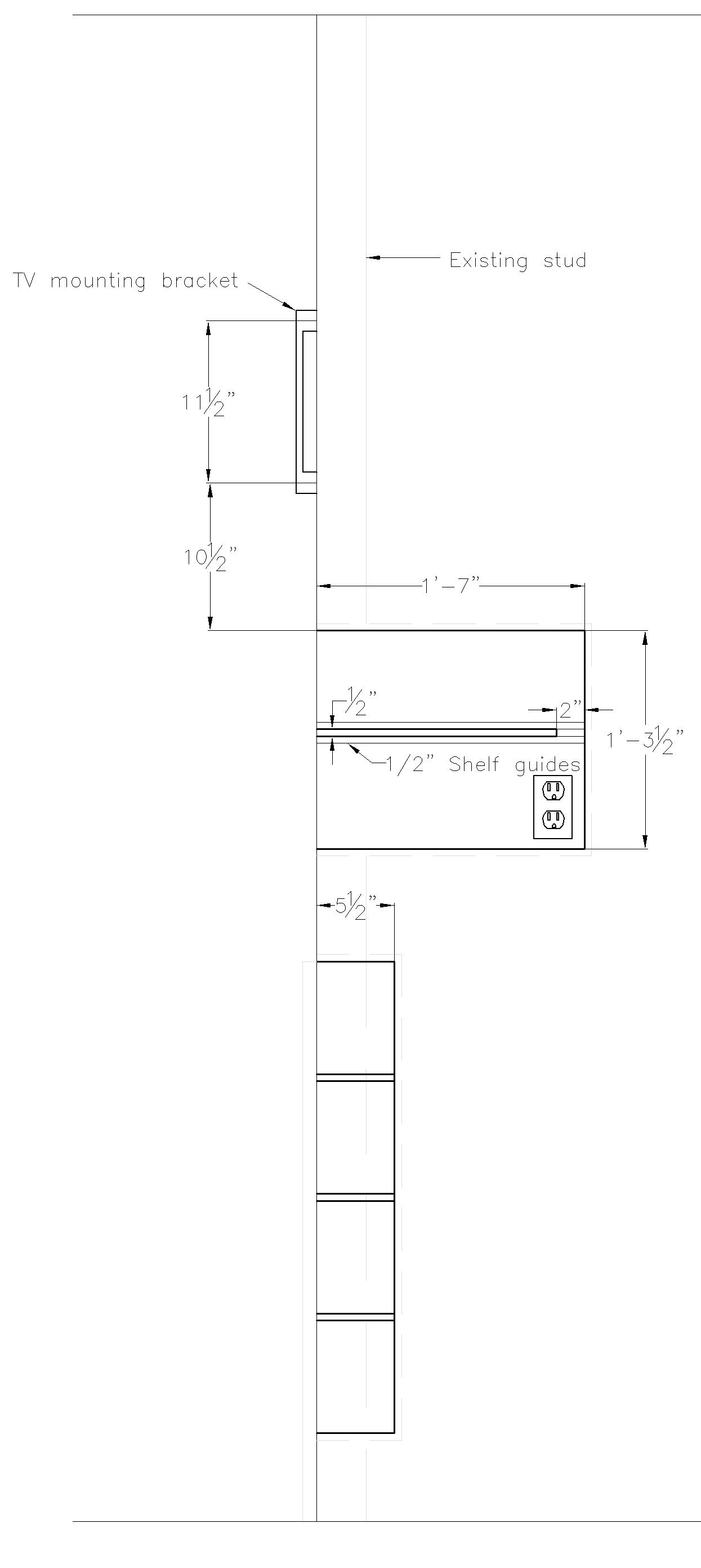
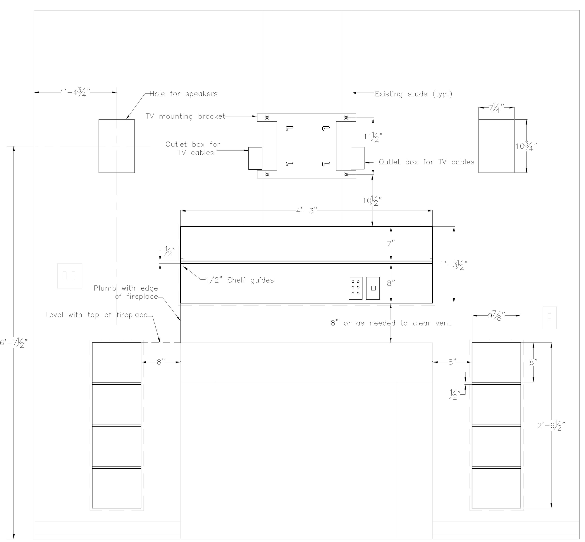
Plan view Section at TV  

   The family room is almost a copy of the home theater. The differences are that I have a TV upstairs, and that all the equipment is located under the TV.

    Since we started this project before we had cable I wanted a place to put some of the kids videos. I figured built-in bookcases sized to hold DVDs and VHS tapes would look neat. My wife wanted doors over everything, I didn't. Eventually I won and I thing she is happy now, too. She also knew I wasn't building enough storage for their whole collection. As it turns out, once the kids discovered the Cartoon Network they don't watch so many movies anymore.

    Once again  I sized everything based on dimensions of hardware I already had. Fortunately, the wiring runs worked out. My only "regret" is the size of the TV; a 37" wide-screen is a little small. Someday I'll have the money for a 45 or 57.